Office planning is a critical first step towards a positive and effective workspace, incorporating all the essential elements your organization needs to function and grow. By conducting a thorough analysis of your business needs and aspirations your organization can avoid costly mistakes and produce an office fit for purpose and designed to adapt to change.

Space Analysis

To truly know how an organization works it is best to speak to the people who are involved in the everyday tasks and the management of the workflow

By a process of information gathering and targeted interviews TMC compile a spatial blueprint of our Clients organizational requirements, taking into account individual and departmental dependencies and the need for supplementary resources.

Emphasis is placed on frequency of interaction between groups, access to meeting facilities, break out spaces and individual work spaces to create a collaborative, dynamic workplace where everything is close at hand.

Blockplanning

Blockplanning

Stacking

Affinity Matrix

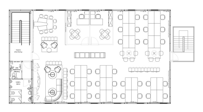
Spaceplanning

“Once we understand the workings of the organization TMC can begin to piece together the optimum use of the space, or a new building requirement”

Using the building blocks created from the data analysis and interviews the next stage is to see how that fits within the building envelope itself, and how long the building will satisfy the organizations growth needs. This process quickly identifies whether the existing facility is suitable in the short, medium or long term.

The first stage is to calculate the overall space needed for each department, with support services, circulation space and meeting facilities. This is known as the footprint and once established provides a visual reference for the size of each department.

This is followed by infilling the specific workstations and equipment for each function and ensuring the correct proximity for departments and work colleagues within departments.

Design

Taking 2-dimensional plans and bringing them to life in 3D is when the project takes form

This is when the landscape of the interior is put together, looking at visual relief, colours, textiles and specific products to produce the look and feel required.

Using the latest computerized image rendering technology, detailed 3 dimensional images are produced to show the complete interior in photographic detail, with the option to have live walkthroughs allowing our Clients to review every element of the proposed project.

Contact Us

Get in touch with us today and let's discuss your project needs